Duplex à vendre 3 chambres à Reuland

  • Référence : 5367607
  • Type : Duplex
  • Chambres : 3
  • Surface habitable : +/-163,53 m2
  • Superficie terrain : +/- 0 Ares
  • Prix de vente : 696 476 €
Contact
Classe énergétique :
économe
A
énergivore
Classe d'isolation thermique : B
Emission de gaz à effet de serre (GES) : 
N_C

Description

Duplex situé dans une maison bi-familiale, composé comme suit:
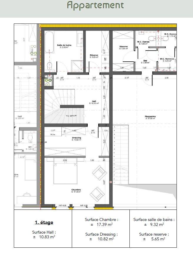
au 1er étage: un hall d'entrée, une chambre à coucher avec dressing, une salle de bain et un débarras.
Au 2ème étage: un hall d'entrée, 2 chambres à coucher, une salle de bain et un séjour avec une cuisine, ainsi qu'une terrasse de 117.94 m2.
Grenier aménageabel et garage pour 2 voitures.

Ref agence :5367609

Caractéristiques

Intérieur

Salonoui
Cuisine ouverteoui

Sanitaires

Salles de bains2

Extérieur

Terrasse117.94 m²

Voiture

Garages2

Contactez-nous

+352 691 182 861

Vous
 
Champs obligatoire
En envoyant ce formulaire, j’accepte que mes informations soient enregistrées puis utilisées par notre agence afin de répondre à ma demande. Consultez notre pour connaître vos droits.
 

Localisation

Attention : Si l'adresse exacte n’est pas renseignée, le centre de la localité sera indiqué sur la carte.